apartment 3 Rooms for rent on MONACO (98000)

Rental Apartment Monaco 3 Rooms 97 m²

  • 3 Rooms
  • 2 Bedrooms
  • 97 Total surface
  • 2 Bedrooms
  • 97 Total surface
12,500 € / month
  • Le Zodiaque, 3-room flat with balconies close to the Port

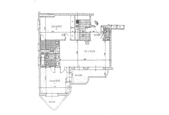
    For rent in Monaco, in the sought-after district of La Condamine, a beautiful 2-bedroom apartment located on the 5th floor of the Le Zodiaque residence, a prestigious building with concierge service and two convenient entrances: one close to Place d’Armes with its traditional market, restaurants, local shops and Port Hercule; the other on Boulevard de Belgique, just steps away from Parc Princesse Antoinette.

    With a total surface of 97 sqm (including 86 sqm of living space and two loggias), this bright apartment enjoys a pleasant view of the Rock of Monaco. It comprises an entrance hall, a spacious double living room, a separate fitted kitchen, two bedrooms: one with shower room and fitted wardrobes, and a master bedroom with private bathroom and access to a covered balcony, as well as a guest WC.

    The apartment is currently being renovated, with a brand-new kitchen and bathrooms, offering modern comfort and high-quality finishes.

    This property also comes with a large parking space in a nearby residence.

    Ideally located in the heart of the central and lively La Condamine district, close to Port Hercule and the Monaco Formula 1 Grand Prix circuit, with immediate access to transport, shops, schools and all local amenities.

    Set within a residence with concierge service, this apartment is perfect as a primary residence or a pied-à-terre in the Principality.

    Our agency Monte-Carlo Sotheby’s International Realty will be delighted to assist you in your search for a rental property in Monaco.