appartamento su due piani 6 Camere in affitto su MONACO (98000)

Locazione Appartamento su due piani Monaco 6 Camere 597 m²

  • 6 Camere
  • 5 Camere da letto
  • 597 Superficie totale
  • 5 Camere da letto
  • 597 Superficie totale
160 000 € / mese
  • One Monte-Carlo, Splendido 5/6 stanze in affitto

    Il complesso One Monte-Carlo è un superbo quartiere residenziale e commerciale inaugurato nel 2019. Gli edifici contemporanei sono costituiti da uffici e sontuosi appartamenti. In queste residenze si trovano i negozi più prestigiosi della città e a pochi metri, il Casino di Monte-Carlo ed il Café de Paris. I dintorni sono molto piacevoli e perfettamente mantenuti.

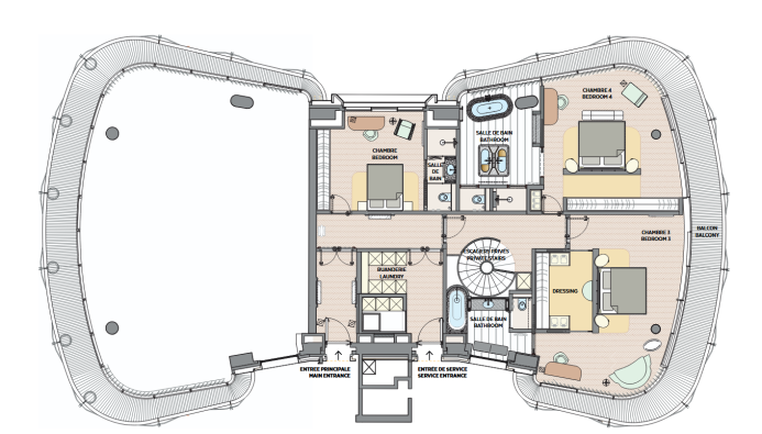
    Questo appartamento in affitto è un duplex situato al secondo e terzo piani di una delle torri. Le stanze sono spaziose e parzialmente vetrate, permettendo a tutta la luce naturale di entrare nell'appartamento. Con finiture e dotazioni di alto livello, questo appartamento di 5/6 stanze offre una superficie totale di circa 527 mq, di cui 117 mq di balconi che circondano l'appartamento.

    Al livello principale, un splendido ingresso conduce ad un'ampia zona giorno con un doppio soggiorno e una sala da pranzo separata. La cucina è completamente attrezzata e comunica direttamente con la sala da pranzo. Sull'altro lato dell'appartamento ci sono le camere da letto: la prima con bagno/doccia, wc separato e armadi. Le altre due camere hanno un bagno con doccia, wc separato e armadi. Tutte le camere aprono su una parte del balcone. Su questo stesso livello, troverete un bagno per gli ospiti e una lavanderia/dispensa con ingresso di servizio.

    Al livello inferiore, accessibile da una magnifica scala privata nell'ingresso, si trova una splandida Master Suite circondata da un bellissimo balcone. Questo magnifico spazio comprende un ampia camera da letto, 2 spogliatoi “Signora e Signore” e un bagno/doccia con wc separato. Questa eccezionale proprietà è disponibile in affitto con una cantina e 3 parcheggi.

    Il One Monte-Carlo offre servizi ai suoi residenti, incluso il parcheggiatore e un custode 24 ore su 24, 7 giorni su 7. Inoltre, gli inquilini avranno accesso al servizio di pulizia, lavanderia e servizio in camera. I contratti di locazione sono stabiliti per un periodo minimo di 2 anni.

    Monte-Carlo Sotheby's International Realty, agenzia immobiliare di lusso per la vostra ricerca di appartamenti di prestigio in affitto a Monaco